Key features
- Three bedrooms
- Modern Kitchen
- Two Reception Rooms
- Large Enclosed Rear Garden
- Single Detached Garage
- Cellar
- Close To Schools & Local Amenities
- EPC Grade E
Full property
BEING COMPETITIVELY PRICED TO SELL we offer for sale this good sized three bedroom mid terrace property. Offering two reception rooms, cellar and detached garage this home will be of interest to both first time buyers and young families. Well placed for easy access to the town centre and motorway networks.
We strongly recommend a viewing at your earliest convenience to avoid disappointment.
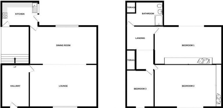
Entrance Hall
- 
Entering through a wooden door the hallway leads onto the lounge, dining room and stairs to the first floor, there is a radiator, telephone point and laminate flooring. 
Dimensions: 4.52 x 1.12 / 14'10" x 3'8"
Lounge
- 
UPVC double glazed picture window over looking the front buffer garden. Laminate flooring Picture rail and cornice coving. Radiator and modern gas fire with hearth. 
Dimensions: 4.01 x 3.71 / 13'2" x 12'2"
Kitchen
- 
This modern fitted kitchen offers a single sink drainer with mixer tap, feature tile surround with fitted cupboards to higher and lower aspect. offering plumbing for a washing machine, electric cooker point with extractor hood and built in gas oven. The dark wood effect laminate flooring compliments the worktops, with large window to rear leading to the rear garden. 
Dimensions: 3.15 x 2.57 / 10'4" x 8'5"
Master bedroom
- 
Large carpeted double bedroom with UPVC double glazed window to the rear aspect, fitted wardrobes and radiator. 
Dimensions: 3.30 x 3.07 / 10'10" x 10'1"
Bedroom Two
- 
Large double bedroom boasting the original wood flooring with large fitted wardrobes. UPVC double glazed window to the front aspect with radiator. 
Dimensions: 4.01 x 2.46 / 13'2" x 8'1"
Bedroom Three
- 
Boasting the original wood flooring offers this good sized single bedroom with UPVC double glazed window to front aspect. 
Dimensions: 3.99 x 2.01 / 13'1" x 6'7"
Family Bathroom
- 
UPVC double glazed frosted glass window, three piece bathroom suite with low level flush wc, wash hand basin, shower over bath, part tiled walls, paneled bath side. The airing cupboard hosts the hot water cylinder. 
Dimensions: 2.46 x 2.01 / 8'1" x 6'7"
Rear Garden
- 
To the rear there is an enclosed and low maintenance garden with a single detached garage. 
First Floor Landing
- 
The larger than average landing leads you onto the three bedrooms and family bathroom. 
Interested in this property?
 
 
 
 
 
 
 
 
 
 
 
 
 
 
 
 
 
 
 
 
 
 
 
 
 
 
 
 
 
 
 
 
 
 
 
 
 
 
