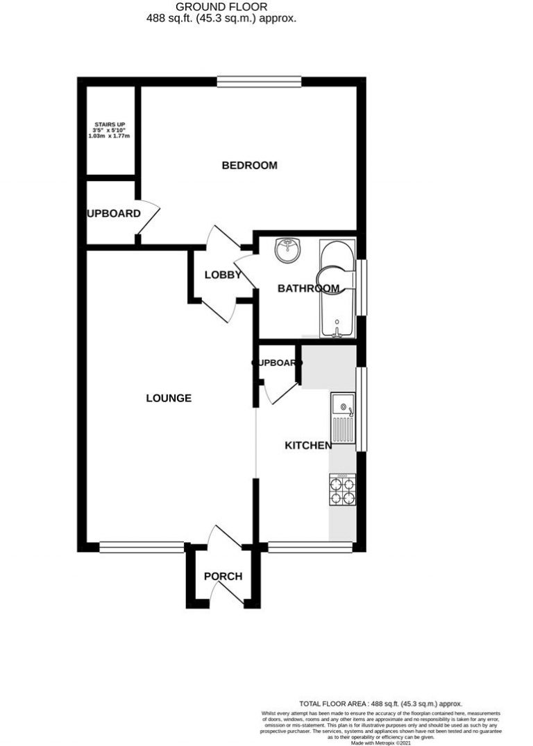
Key features
- Good sized Lounge Area
- Modern Kitchen
- Double Bedroom
- Modern Bathroom
- Small Garden Area
- EPC GRADE C
Full property
***AVAILABLE FOR VIEWINGS NOW*** NO ONWARD CHAIN****If you are looking for your first home, or looking to downsize then look no further. This is a modern, one bedroom apartment set in this HIGHLY DESIRABLE LOCATION and offering well presented accommodation throughout. Ideally located close to transport links and local amenities. Early viewing of this property is highly recommended and should be arranged at your earliest convenience.
Porch
- 
With door leading to the lounge. 
Lounge
- 
With a picture window, under stairs cupboard, television point, central heating thermostat and gas central heated radiator. 
Kitchen
- 
Fitted with a range of modern base and wall units with work surfaces over, incorporating a single sink drainer with mixer taps, wall mounted boiler, plumbing and space for a washing machine, built in oven with electric hob and extractor. 
Master Bedroom
- 
With a picture window and gas central heated radiator. 
Bathroom
- 
Fitted with a white three piece bathroom suite which comprises of a low flush wc, wash hand basin, panelled bath with shower over and frosted uPVC window. 
Externally
- 
There is a small garden to the front of the property laid mainly to lawn. 
Interested in this property?
 
 
 
 
 
 
 
 
 
 
 
 
 
 
 
 
 
 
 
 
